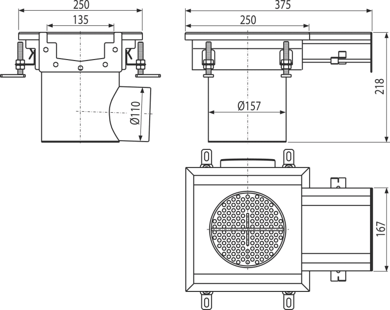
Industriekastenablauf 250×250-135, Edelstahl AISI 316L

APR6-1321-135-P

Geruchsverschluss mit Sperrwasser50 mm
  • Für die Entwässerung von großen Industrieanlagen und anderen kommerziellen Einrichtungen in Gebäuden, z. B. in der Chemie- und Lebensmittelindustrie
  • Drain mehr Wasser, geeignet für die Langstrecken
  • Abdeckrost aus Edelstahl (verarbeitet durch Beizen und Passivieren), dieses Verfahren garantiert, dass der Edelstahl auch nach mehreren Jahren seine Eigenschaften und zuverlässigen Betrieb hält
  • Das ganze System ist fest im Beton durch einfaches verstellbare Füssen fest im Beton verankert.
  • Hohe Durchflusskapazität
  • Einstellbare Höhe im Bereich von 80-115 mm
  • Gebrauchte Dichtung sorgt für eine absolut wasserdichte Verbindung
  • Material des Ablaufes: Edelstahl 1,5 mm DIN 1.4404
  • EN 1253-1
Menge (Verpackung) 1 St.
Menge (Palette) - St.
Maß (Stück) 250×375×218 mm
Größe (Packung) 250×375×218 mm
Gewicht (Stück) 4,9745 kg
Gewicht (Verpackung) 4,9745 kg
Gewicht (Palette) - kg
  • Ablauf
  • Abdichtung- 1 Stk
  • Verstellbare Füße
  • der Schmutzsieb
  • der Geruchsverschluss
  • Befestigungsset
KodeEANTechnisches Blatt
APR6-1321-135-P8595580574529Technický list