| Geruchsverschluss mit Sperrwasser | 50 mm |
Produktdetails
- Für die Entwässerung von großen Industrieanlagen und anderen kommerziellen Einrichtungen in Gebäuden, z. B. in der Chemie- und Lebensmittelindustrie
- Drain mehr Wasser, geeignet für die Langstrecken
- Abdeckrost aus Edelstahl (verarbeitet durch Beizen und Passivieren), dieses Verfahren garantiert, dass der Edelstahl auch nach mehreren Jahren seine Eigenschaften und zuverlässigen Betrieb hält
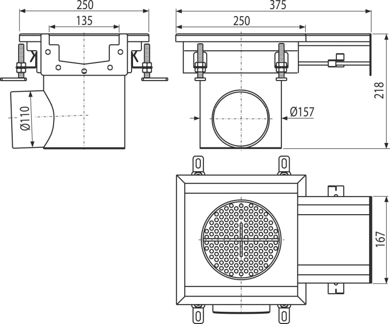
- Das ganze System ist fest im Beton durch einfaches verstellbare Füssen fest im Beton verankert.
- Hohe Durchflusskapazität
- Einstellbare Höhe im Bereich von 80-115 mm
- Gebrauchte Dichtung sorgt für eine absolut wasserdichte Verbindung
- Material des Ablaufes: Edelstahl 1,5 mm DIN 1.4404
- EN 1253-1
| Menge (Verpackung) | 1 St. |
| Menge (Palette) | - St. |
| Maß (Stück) | 250×375×218 mm |
| Größe (Packung) | 250×375×218 mm |
| Gewicht (Stück) | 4,9745 kg |
| Gewicht (Verpackung) | 4,9745 kg |
| Gewicht (Palette) | - kg |
- Ablauf
- Abdichtung- 1 Stk
- Verstellbare Füße
- der Schmutzsieb
- der Geruchsverschluss
- Befestigungsset